現地案内をいつでも受け付けております。詳しくはお気軽にご連絡ください。ハチス住研

中古別荘 物件№ C2527 那須・桜台 仲介

  
所 在: 那須郡那須町大字高久丙
価 格: 780万円
土 地: 土地面積/400㎡(121.00坪)
私道負担約38㎡含
建 物:新築年月/平成6年12月
建物面積/51.89㎡(15.69坪)
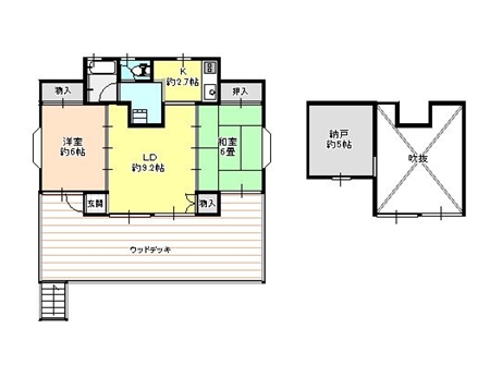
間取り/2LDK
(LDK約11.9、洋室約6、和室6、納戸約5)
設 備: 水道/私設 汚水・排水/宅地内処理
環 境: 別荘地「桜台」内
御料地近接の別荘地
標高約650m
比較的積雪も少なく、近年定住者も増加
※別荘地管理規約により民泊使用不可
特 徴: 積雪が少なく定住可能な平家建
薪ストーブが付いた吹抜けのリビング
薪置場があり常時薪のストックが可能
窓が多く明るいリビング
各室収納の他、約5帖の納戸あり収納豊富
約17帖の大型ウッドデッキでBBQパーティーや愛犬と遊ぶことができます