現地案内をいつでも受け付けております。詳しくはお気軽にご連絡ください。ハチス住研

中古別荘 物件№ C2516 (那須・広谷地道上自治会) 仲介

  
所 在: 那須郡那須町大字高久乙
価 格: 1,300万円
面 積: 土地/495㎡(149.73坪)
建物/118.41㎡(35.81坪)
設 備: 水道/公営水道 汚水・排水/宅内処理
環 境: 別荘地「広谷地道上自治会」内
広谷地交差点から近く、レジャーや観光、生活施設へのアクセス良好
標高450m前後
建 物:平成7年築
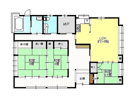
3SLDKの和風平家建
ポイント: 建物面積35坪超の3SLDK(LDK約16帖、和室8畳、和室6畳、和室4.5畳、納戸約3帖)
贅沢な岩風呂は温泉引き込み可能
続き間で繋がる、和室14畳の空間
公営水道
積雪が少なく定住可能
現況駐車スペース1台分ですが、駐車場の拡張が容易に可能